パークサイドマンション松が丘賃貸物件1DK

賃貸募集

205号室

物件詳細

現況入居中入居日2月末退去、3月上旬入居可
住居用物件種目 賃貸マンション
最寄駅交通 西武新宿線 新井薬師駅 徒歩11分
西武新宿線 沼袋駅 徒歩9分
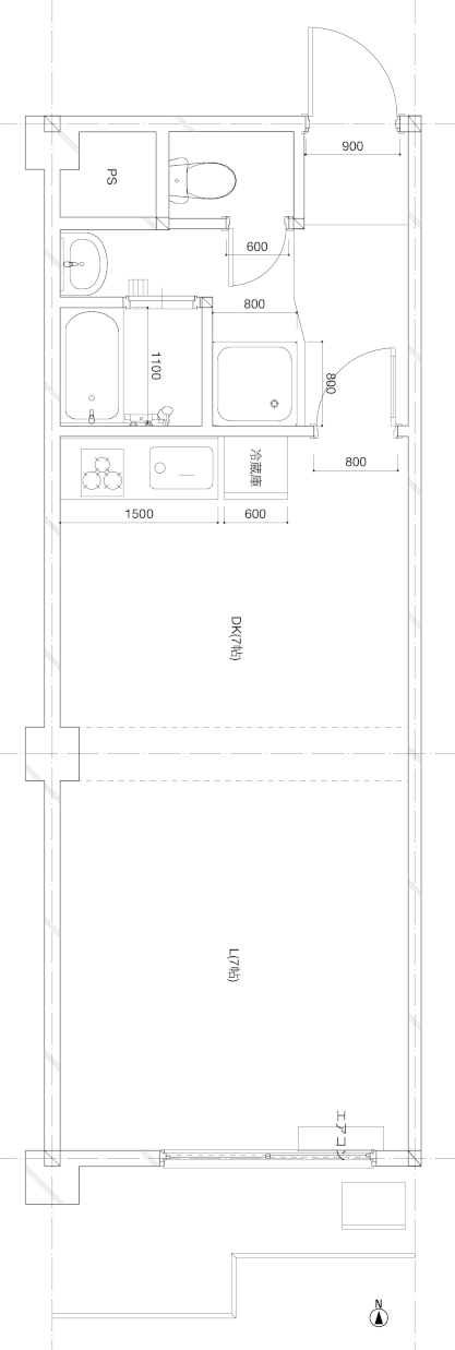
間取り 1DK面積33.98㎡間取内訳8畳DK、7畳洋間
賃料 100,000円共益費
礼金 0ヶ月敷金1ヶ月(敷金償却0.5ヶ月)
所在地 〒1650024 東京都中野区松が丘2-36-8
建物 建物名パークサイドマンション松が丘
規模構造5階建 RC造
築年月 1985年11月(※1981年新耐震基準適応)
駐車場 なし所在階/総階数2階/5階 エレベーター無し
各戸設備 南向き/バルコニー/室内洗濯機置場/駐輪場(バイク可)/バス・トイレ別/カラーモニター付きインターフォン
※重要※
  • 違約金あり、2年契約満了しない場合は違約金として1カ月
  • 退出時1か月敷金償却
  • 火災保険:要加入※1
  • 家賃保証:要加入
  • 共用部分禁煙
  • 建物使用管理規則あり
※退出時、下記について当てはまる場合、標準クリーニング費に加え、各清掃または修繕費用がかかります。
1.たばこのヤニ汚れ
2.臭い
3.換気扇の過度の油汚れ(フィルターを使っていないような場合の程度)
3.カビ
備考 二人入居、ファミリーOK 自転車は2台/世帯まで駐輪無料
バイク台/世帯まで駐輪無料※駐輪場の開き具合によってはバイク駐車不可
ガスコンロがある場合は残置物
ペット不可

※図面と異なる場合は現状優先
※1 家賃保証会社のプランは次のサービスや補償があるもの 1)収納代行(立替払い型) 2)原状回復 3)違約金 / 家賃保証会社は、家賃保全策(信託銀行利用)を行っている
賃貸マンション1DK南向き205号室

※同じ間取りの部屋の図面です。キッチンサイズなど、詳細が異なりますのでご注意ください。205号室は、西側に窓があります。

下記は2025年2月上旬の工事中の画像です。



下記は、似た内装の404号室画像

賃貸マンション1DK南向き404号室洗面 賃貸マンション1DK南向き404号室トイレ 賃貸マンション1DK南向き404号室ユニットバス 賃貸マンション1DK南向き404号室洗濯機置き場 賃貸マンション1DK南向き404号室キッチン 賃貸マンション1DK南向き404号室キッチン 賃貸マンション1DK南向き404号室キッチン